admin


Baugrund Keferfeld Grundbachweg 14

599 m², gute Wohnlage

Dieses kompakte Grundstück verfügt über die Widmung "M" gemischtes Baugebiet. Es ist sowohl die Errichtung eines Wohnhauses (Einfamilienhaus oder Mehrfamilienhaus) als auch eines Betriebsgebäudes (Büro oder Werkstätte) oder einer Kombination aus beiden möglich.

Der Bebauungsplan erlaubt 2 Vollgeschoße und Dachraumausbau.

Die Infrastruktur ist sehr gut, Billa, Apotheke, Bank, Hummelhofbad und Öffis sind fußläufig erreichbar.

Das Grundstück ist eben und hat eine rechteckige Form.

€ 300.000,-
BG 599

Einfamilienhaus mit großem Garten

Pasching neben Erholungswald Langholzfeld

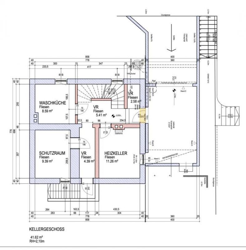
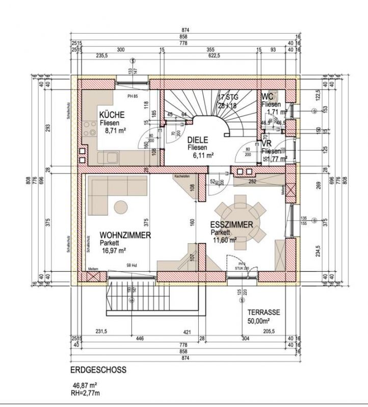
Wohnfläche 157 m², Terrasse 30 m², Balkon 8 m², Keller 80 m². Grundstücksfläche 1008 m². Pelikanstraße 26, 4061 Pasching.

Gepflegtes Einfamilienhaus in gekoppelter Bauweise. Das Haus befindet sich in einem sehr guten Zustand und liegt in einer ruhigen und sehr begehrten Wohngegend. Die Fenster (Internorm) wurden 1990 erneuert und mit Rollläden ausgestattet. Der Verdampfungsbrenner der Öl-Zentralheizung wurde 2014 erneuert, ebenso das Dach und die Elektrik. Der beheizte Wohnkeller mit Sauna bietet viel Stauraum und vielseitige Nutzungsmöglichkeiten.
Für Erholung und Entspannung sorgt der großzügige Garten, daher ideal für Familien und Naturliebhaber! Ein Pool ist vorhanden, allerdings stillgelegt. Gegenüber der Liegenschaft ist ein großzügiger Park und somit unverbaubar. Einkaufsmöglichkeiten und Straßenbahn befinden sich in unmittelbarer Nähe!
HWB 96


€ 690.000,-
WH157

VERKAUFT 2025

Pöstlingbergvilla Linz

zählt zu den exklusivsten Wohnhäusern Österreichs

Bei der Liegenschaft handelt es sich um ein großes, neuwertiges Wohnhaus mit nur jedem erdenklichen Komfort und Sicherheit, eine seltene Gelegenheit, die ihresgleichen sucht. Das Gebäude befindet sich auf einem rechteckigen Grundstück mit leichter Hangneigung nach Süden. Ruhig gelegen mit Gebirgsblick und Abendsonne.

Die Liegenschaft befindet sich in der Gemeinde Gramastetten, Ortsteil Pöstlingberg. Diese Bereich gehört zu den begehrtesten Wohnlagen in Linz.

Das Gebäude bestehend aus Untergeschoß (Wohnung, Büro, Lager und Garage für 3 PKWs) und Obergeschoß (Wohnen, Wellness, Terrasse, Pool).

Die Ausstattung umfasst Erdwärmepumpe mit Tiefenbohrungen, PV-Anlage mit Überschusseinspeisung, Fußbodenheizung, Kühldecken, KNX Steuerung, Alarmanlage mit Innen und Außenschutz, Sauna, Pool, etc.

Der HWB beträgt 36 kWh/m²a, die Energiekosten sind daher sehr gering. Die Wohn- und Nutzfläche beträgt gesamt ca. 619 m², das Grundstück ist 1.100 m² groß.



€ 3,000.000
WH 619

VERKAUFT 2024.

Doppelhaushälfte Froschberg Linz

ruhig und sonnig gelegen mit einem westseitigen großen Garten

Das Doppelhaus wurde in der begehrten Wohngegend am Froschberg, Johann Sebastian Bachstraße 14 im Jahr 1941 baubewilligt und 1997 vom derzeitigen Eigentümer erworben und saniert. Die Wohnnutzfläche beträgt 130,95 m² über 3 Ebenen. Die Grundstücksgröße beträgt 435 m². Im Jahr 2010 erfolgte eine energetische Sanierung des Hauses (VWS, Gas-Brennwertgerät, Solar 9 m² mit 500 l Pufferspeicher, Fenster, kontrollierte Wohnraumeinzellüftungsgeräte mit Wärmerückgewinnung in WZ, EZ, SZ und Keller). Zusätzlich kann mit dem Kachelofen geheizt werden. Das Haus ist voll unterkellert mit direktem Gartenausgang. Der großzügige sonnige und liebevoll gepflegte Garten mit Naturstein-Terrasse, Gerätehaus in Holz und angrenzender Laube samt Baumbestand lädt zur Entspannung ein. Die Garage wurde 2019 errichtet, ein zusätzlicher Abstellplatz ist vor der Garage. Nahversorger sowie die Bushaltestelle sind in unmittelbarer Nähe!
Der HWB beträgt 67,6 kWh/m²a.

€ 795.000, -
WH131

VERKAUFT 2023.